Elected Officials
Courts
Departments
Initiatives
Open Government
About
Login / Register
Home
/
Property & Tax Records
/
Property Records
/
Property & Tax Search
/
Parcel Profile
/
Sketches
Search for Another Parcel
Parcel Profile
Historical Card
Sketches
Photos
Tax Map
Taxes
Print View
Address: 3414 W 10 ST
Parcel: 33028078002700
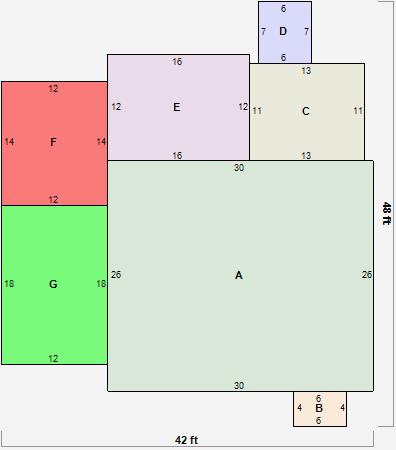
Parcel Sketches
Residential Card 1
A
MAIN
780 square feet
B
OFP OPEN FRAME PORCH
24 square feet
C
1S FR ONE STORY FRAME 1S FR ONE STORY FRAME
143 square feet
D
EFP ENCL FRAME PORCH
42 square feet
E
WDDCK WOOD DECKS
192 square feet
F
EFP ENCL FRAME PORCH
168 square feet
G
UNFIN BSMT BASEMENT UNFINISHED 1S FR ONE STORY FRAME
216 square feet