Elected Officials
Courts
Departments
Initiatives
Open Government
About
Login / Register
Home
/
Property & Tax Records
/
Property Records
/
Property & Tax Search
/
Parcel Profile
/
Sketches
Search for Another Parcel
Parcel Profile
Historical Card
Sketches
Photos
Tax Map
Taxes
Print View
Address: 3515 W 10 ST
Parcel: 33028080000400
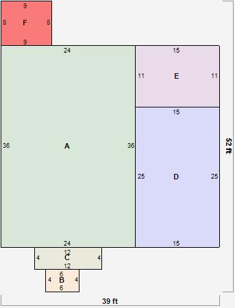
Parcel Sketches
Residential Card 1
A
MAIN
864 square feet
B
MA STOOP/TERR MAS STOOP
24 square feet
C
1S FR ONE STORY FRAME
48 square feet
D
1S FR ONE STORY FRAME AT FN ATTIC-FINISHED
375 square feet
E
MA_PT CONC/MAS PATIO
165 square feet
F
EFP ENCL FRAME PORCH
72 square feet