Elected Officials
Courts
Departments
Initiatives
Open Government
About
Login / Register
Home
/
Property & Tax Records
/
Property Records
/
Property & Tax Search
/
Parcel Profile
/
Sketches
Search for Another Parcel
Parcel Profile
Historical Card
Sketches
Photos
Tax Map
Taxes
Print View
Address: 1110 FILMORE AVE
Parcel: 33030054000500
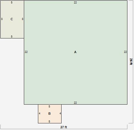
Parcel Sketches
Residential Card 1
A
MAIN
1040 square feet
B
MA STOOP/TERR MAS STOOP
36 square feet
C
1S FR ONE STORY FRAME
36 square feet
D
1S FR ONE STORY FRAME 1S FR ONE STORY FRAME AT FN ATTIC-FINISHED
51 square feet
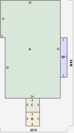
Residential Card 2
A
MAIN
484 square feet
B
MA STOOP/TERR MAS STOOP
20 square feet
C
EFP ENCL FRAME PORCH
40 square feet