Elected Officials
Courts
Departments
Initiatives
Open Government
About
Login / Register
Home
/
Property & Tax Records
/
Property Records
/
Property & Tax Search
/
Parcel Profile
/
Sketches
Search for Another Parcel
Parcel Profile
Historical Card
Sketches
Photos
Tax Map
Taxes
Print View
Address: 2623 CARTER AVE
Parcel: 33054252005300
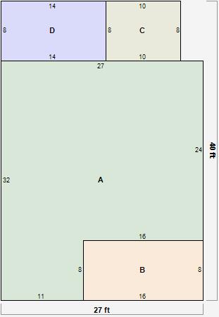
Parcel Sketches
Residential Card 1
A
MAIN
736 square feet
B
OFP OPEN FRAME PORCH
128 square feet
C
1S FR ONE STORY FRAME
80 square feet
D
WDDCK WOOD DECKS
112 square feet