Elected Officials
Courts
Departments
Initiatives
Open Government
About
Login / Register
Home
/
Property & Tax Records
/
Property Records
/
Property & Tax Search
/
Parcel Profile
/
Sketches
Search for Another Parcel
Parcel Profile
Historical Card
Sketches
Photos
Tax Map
Taxes
Print View
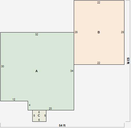
Address: 3230 ASBURY RD
Parcel: 33060234005200
Parcel Sketches
Residential Card 1
A
MAIN
1040 square feet
B
FR GR FRAME GARAGE
616 square feet
C
MA STOOP/TERR MAS STOOP
30 square feet