Elected Officials
Courts
Departments
Initiatives
Open Government
About
Login / Register
Home
/
Property & Tax Records
/
Property Records
/
Property & Tax Search
/
Parcel Profile
/
Sketches
Search for Another Parcel
Parcel Profile
Historical Card
Sketches
Photos
Tax Map
Taxes
Print View
Address: 2912 ARCADIA AVE
Parcel: 33065249002200
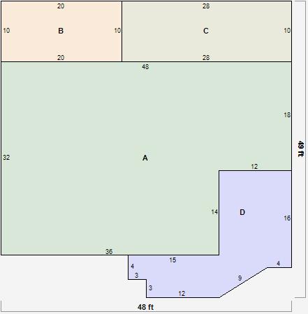
Parcel Sketches
Residential Card 1
A
MAIN
1368 square feet
B
MA_PT CONC/MAS PATIO
200 square feet
C
EFP ENCL FRAME PORCH
280 square feet
D
WDDCK WOOD DECKS
308 square feet