Elected Officials
Courts
Departments
Initiatives
Open Government
About
Login / Register
Home
/
Property & Tax Records
/
Property Records
/
Property & Tax Search
/
Parcel Profile
/
Sketches
Search for Another Parcel
Parcel Profile
Historical Card
Sketches
Photos
Tax Map
Taxes
Print View
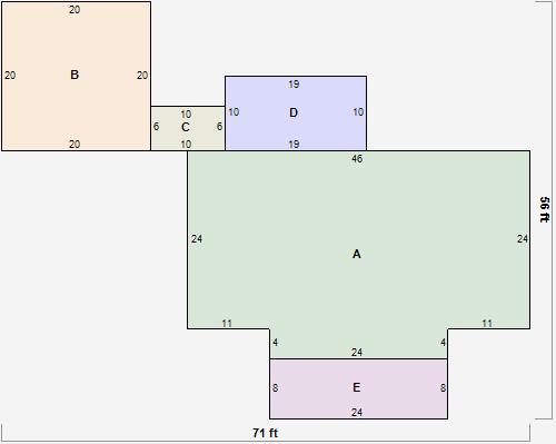
Address: 2902 HASTINGS RD
Parcel: 33069260000700
Parcel Sketches
Residential Card 1
A
MAIN
1200 square feet
B
FR GR FRAME GARAGE
400 square feet
C
EFP ENCL FRAME PORCH
60 square feet
D
1S FR ONE STORY FRAME
190 square feet
E
OFP OPEN FRAME PORCH
192 square feet