Elected Officials
Courts
Departments
Initiatives
Open Government
About
Login / Register
Home
/
Property & Tax Records
/
Property Records
/
Property & Tax Search
/
Parcel Profile
/
Sketches
Search for Another Parcel
Parcel Profile
Historical Card
Sketches
Photos
Tax Map
Taxes
Print View
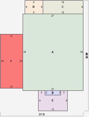
Address: 2608 W 26 ST
Parcel: 33071196001000
Parcel Sketches
Residential Card 1
A
MAIN
918 square feet
B
WDDCK WOOD DECKS
48 square feet
C
1S FR ONE STORY FRAME
108 square feet
D
1S FR ONE STORY FRAME
14 square feet
E
OFP OPEN FRAME PORCH
103 square feet
F
1S FR ONE STORY FRAME
240 square feet