Elected Officials
Courts
Departments
Initiatives
Open Government
About
Login / Register
Home
/
Property & Tax Records
/
Property Records
/
Property & Tax Search
/
Parcel Profile
/
Sketches
Search for Another Parcel
Parcel Profile
Historical Card
Sketches
Photos
Tax Map
Taxes
Print View
Address: 2527 CRESCENT DR
Parcel: 33072296003300
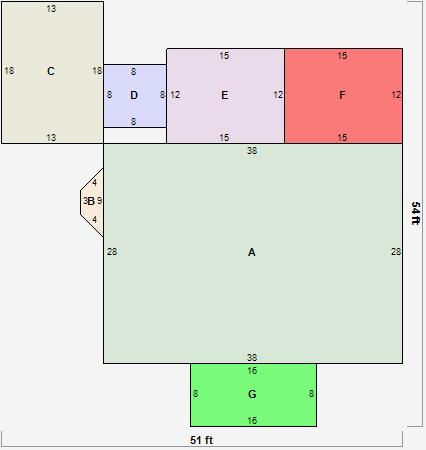
Parcel Sketches
Residential Card 1
A
MAIN
1064 square feet
B
UNFIN BSMT BASEMENT UNFINISHED 1S FR ONE STORY FRAME
18 square feet
C
WDDCK WOOD DECKS
234 square feet
D
WDDCK WOOD DECKS
64 square feet
E
1S FR ONE STORY FRAME
180 square feet
F
WDDCK WOOD DECKS
180 square feet
G
OFP OPEN FRAME PORCH
128 square feet