Elected Officials
Courts
Departments
Initiatives
Open Government
About
Login / Register
Home
/
Property & Tax Records
/
Property Records
/
Property & Tax Search
/
Parcel Profile
/
Sketches
Search for Another Parcel
Parcel Profile
Historical Card
Sketches
Photos
Tax Map
Taxes
Print View
Address: 3102 WESTLINE ST
Parcel: 33073298001800
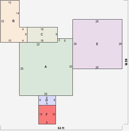
Parcel Sketches
Residential Card 1
A
MAIN
800 square feet
B
WDDCK WOOD DECKS
252 square feet
C
1S FR ONE STORY FRAME
128 square feet
D
EFP ENCL FRAME PORCH
45 square feet
E
FR GR FRAME GARAGE
676 square feet
F
OFP OPEN FRAME PORCH
90 square feet