Elected Officials
Courts
Departments
Initiatives
Open Government
About
Login / Register
Home
/
Property & Tax Records
/
Property Records
/
Property & Tax Search
/
Parcel Profile
/
Sketches
Search for Another Parcel
Parcel Profile
Historical Card
Sketches
Photos
Tax Map
Taxes
Print View
Address: 3202 HAMPSHIRE RD
Parcel: 33076334001200
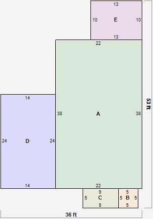
Parcel Sketches
Residential Card 1
A
MAIN
836 square feet
B
OFP OPEN FRAME PORCH
25 square feet
C
EFP ENCL FRAME PORCH
45 square feet
D
UNFIN BSMT BASEMENT UNFINISHED 1S FR ONE STORY FRAME
336 square feet
E
EFP ENCL FRAME PORCH
130 square feet