Elected Officials
Courts
Departments
Initiatives
Open Government
About
Login / Register
Home
/
Property & Tax Records
/
Property Records
/
Property & Tax Search
/
Parcel Profile
/
Sketches
Search for Another Parcel
Parcel Profile
Historical Card
Sketches
Photos
Tax Map
Taxes
Print View
Address: 3235 STERRETTANIA RD
Parcel: 33076339002300
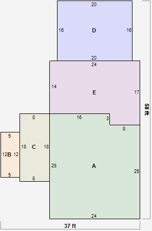
Parcel Sketches
Residential Card 1
A
MAIN
648 square feet
B
WDDCK WOOD DECKS
60 square feet
C
1S FR ONE STORY FRAME
144 square feet
D
MA_PT CONC/MAS PATIO
320 square feet
E
UNFIN BSMT BASEMENT UNFINISHED 1S FR ONE STORY FRAME
360 square feet