Elected Officials
Courts
Departments
Initiatives
Open Government
About
Login / Register
Home
/
Property & Tax Records
/
Property Records
/
Property & Tax Search
/
Parcel Profile
/
Sketches
Search for Another Parcel
Parcel Profile
Historical Card
Sketches
Photos
Tax Map
Taxes
Print View
Address: 3447 W 41 ST
Parcel: 33083402000300
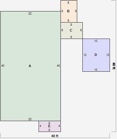
Parcel Sketches
Residential Card 1
A
MAIN
880 square feet
B
EFP ENCL FRAME PORCH
48 square feet
C
WDDCK WOOD DECKS
48 square feet
D
WDDCK WOOD DECKS
120 square feet
E
WDDCK WOOD DECKS
32 square feet