Elected Officials
Courts
Departments
Initiatives
Open Government
About
Login / Register
Home
/
Property & Tax Records
/
Property Records
/
Property & Tax Search
/
Parcel Profile
/
Sketches
Search for Another Parcel
Parcel Profile
Historical Card
Sketches
Photos
Tax Map
Taxes
Print View
Address: 1402 HIGH ST
Parcel: 33100432000900
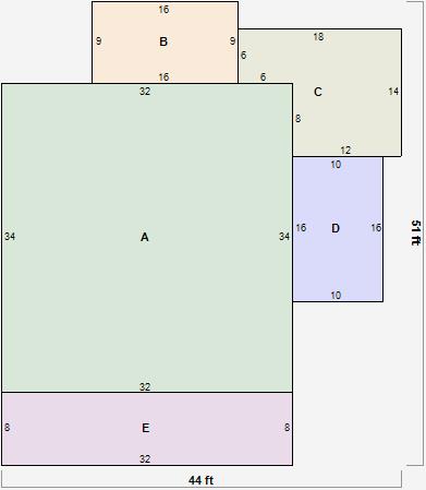
Parcel Sketches
Residential Card 1
A
MAIN
1088 square feet
B
UNFIN BSMT BASEMENT UNFINISHED 1S FR ONE STORY FRAME WDDCK WOOD DECKS
144 square feet
C
MA_PT CONC/MAS PATIO
204 square feet
D
EFP ENCL FRAME PORCH
160 square feet
E
EFP ENCL FRAME PORCH AT FN ATTIC-FINISHED
256 square feet