Elected Officials
Courts
Departments
Initiatives
Open Government
About
Login / Register
Home
/
Property & Tax Records
/
Property Records
/
Property & Tax Search
/
Parcel Profile
/
Sketches
Search for Another Parcel
Parcel Profile
Historical Card
Sketches
Photos
Tax Map
Taxes
Print View
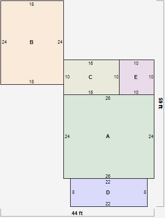
Address: 1305 W GRANDVIEW BLVD
Parcel: 33100440000300
Parcel Sketches
Residential Card 1
A
MAIN
624 square feet
B
FR GR FRAME GARAGE
432 square feet
C
EFP ENCL FRAME PORCH
160 square feet
D
OFP OPEN FRAME PORCH
176 square feet
E
1S FR ONE STORY FRAME
100 square feet