Elected Officials
Courts
Departments
Initiatives
Open Government
About
Login / Register
Home
/
Property & Tax Records
/
Property Records
/
Property & Tax Search
/
Parcel Profile
/
Sketches
Search for Another Parcel
Parcel Profile
Historical Card
Sketches
Photos
Tax Map
Taxes
Print View
Address: 1132 CHESTNUT HILL DR
Parcel: 33100442001000
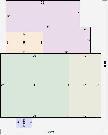
Parcel Sketches
Residential Card 1
A
MAIN
624 square feet
B
EFP ENCL FRAME PORCH
112 square feet
C
MG/BG MASONRY/BRICK GARAGE 1S FR ONE STORY FRAME
288 square feet
D
MA STOOP/TERR MAS STOOP
24 square feet
E
WDDCK WOOD DECKS
488 square feet