Address: 934 ARLINGTON RD   Parcel: 33101453000700

Parcel Sketches


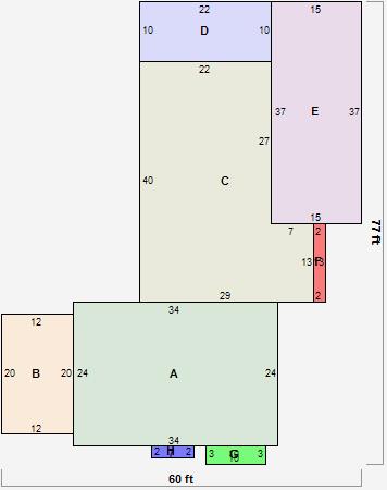
Residential Card 1

Residential Card 1
AMAIN816 square feet
B MA_PT CONC/MAS PATIO 240 square feet
C FR GR FRAME GARAGE 1S FR ONE STORY FRAME 971 square feet
D FR GR FRAME GARAGE OFP OPEN FRAME PORCH 220 square feet
E ST_PT STONE OR TILE PATIO 555 square feet
F FRBAY FRAME BAY 26 square feet
G FRBAY FRAME BAY 30 square feet
H FRBAY FRAME BAY 14 square feet