Elected Officials
Courts
Departments
Initiatives
Open Government
About
Login / Register
Home
/
Property & Tax Records
/
Property Records
/
Property & Tax Search
/
Parcel Profile
/
Sketches
Search for Another Parcel
Parcel Profile
Historical Card
Sketches
Photos
Tax Map
Taxes
Print View
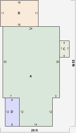
Address: 4714 OLD FRENCH RD
Parcel: 33102470001500
Parcel Sketches
Residential Card 1
A
MAIN
888 square feet
B
1S FR ONE STORY FRAME
176 square feet
C
OFP OPEN FRAME PORCH
28 square feet
D
OFP OPEN FRAME PORCH
72 square feet