Elected Officials
Courts
Departments
Initiatives
Open Government
About
Login / Register
Home
/
Property & Tax Records
/
Property Records
/
Property & Tax Search
/
Parcel Profile
/
Sketches
Search for Another Parcel
Parcel Profile
Historical Card
Sketches
Photos
Tax Map
Taxes
Print View
Address: 218 W GORE RD
Parcel: 33102470002100
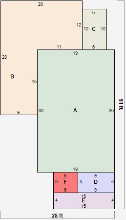
Parcel Sketches
Residential Card 1
A
MAIN
570 square feet
B
1S FR ONE STORY FRAME
384 square feet
C
EFP ENCL FRAME PORCH
60 square feet
D
1S FR ONE STORY FRAME
45 square feet
E
OFP OPEN FRAME PORCH
60 square feet
F
EFP ENCL FRAME PORCH
30 square feet