Elected Officials
Courts
Departments
Initiatives
Open Government
About
Login / Register
Home
/
Property & Tax Records
/
Property Records
/
Property & Tax Search
/
Parcel Profile
/
Sketches
Search for Another Parcel
Parcel Profile
Historical Card
Sketches
Photos
Tax Map
Taxes
Print View
Address: 1025 E GRANDVIEW BLVD
Parcel: 33105472000300
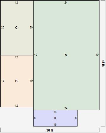
Parcel Sketches
Residential Card 1
A
MAIN
960 square feet
B
CARPT CARPORT
228 square feet
C
1S FR ONE STORY FRAME
240 square feet
D
WDDCK WOOD DECKS
96 square feet