Elected Officials
Courts
Departments
Initiatives
Open Government
About
Login / Register
Home
/
Property & Tax Records
/
Property Records
/
Property & Tax Search
/
Parcel Profile
/
Sketches
Search for Another Parcel
Parcel Profile
Historical Card
Sketches
Photos
Tax Map
Taxes
Print View
Address: 2454 NORCROSS RD
Parcel: 33110483000800
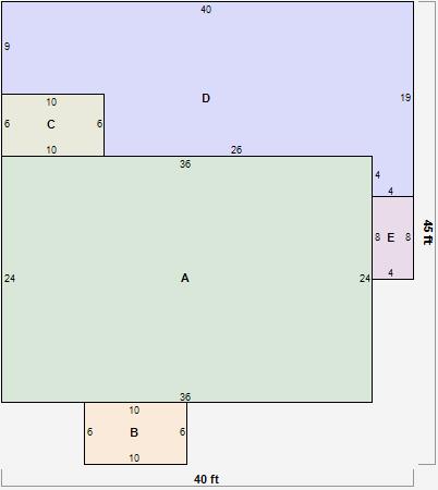
Parcel Sketches
Residential Card 1
A
MAIN
864 square feet
B
EFP ENCL FRAME PORCH
60 square feet
C
OFP OPEN FRAME PORCH OFP OPEN FRAME PORCH
60 square feet
D
WDDCK WOOD DECKS
556 square feet
E
EFP ENCL FRAME PORCH
32 square feet