Elected Officials
Courts
Departments
Initiatives
Open Government
About
Login / Register
Home
/
Property & Tax Records
/
Property Records
/
Property & Tax Search
/
Parcel Profile
/
Sketches
Search for Another Parcel
Parcel Profile
Historical Card
Sketches
Photos
Tax Map
Taxes
Print View
Address: 2029 NORCROSS RD
Parcel: 33111490000300
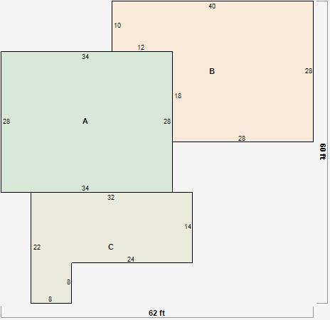
Parcel Sketches
Residential Card 1
A
MAIN
952 square feet
B
FR GR FRAME GARAGE
904 square feet
C
1S FR ONE STORY FRAME
512 square feet