Elected Officials
Courts
Departments
Initiatives
Open Government
About
Login / Register
Home
/
Property & Tax Records
/
Property Records
/
Property & Tax Search
/
Parcel Profile
/
Sketches
Search for Another Parcel
Parcel Profile
Historical Card
Sketches
Photos
Tax Map
Taxes
Print View
Address: 5153 SCHRIMPER RD
Parcel: 33112661001000
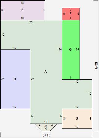
Parcel Sketches
Residential Card 1
A
MAIN
834 square feet
B
OFP OPEN FRAME PORCH
96 square feet
C
FRBAY FRAME BAY
18 square feet
D
1S FR ONE STORY FRAME
288 square feet
E
EFP ENCL FRAME PORCH
144 square feet
F
MA STOOP/TERR MAS STOOP
35 square feet
G
EFP ENCL FRAME PORCH
168 square feet