Elected Officials
Courts
Departments
Initiatives
Open Government
About
Login / Register
Home
/
Property & Tax Records
/
Property Records
/
Property & Tax Search
/
Parcel Profile
/
Sketches
Search for Another Parcel
Parcel Profile
Historical Card
Sketches
Photos
Tax Map
Taxes
Print View
Address: 5211 LEXINGTON ST
Parcel: 33121536000500
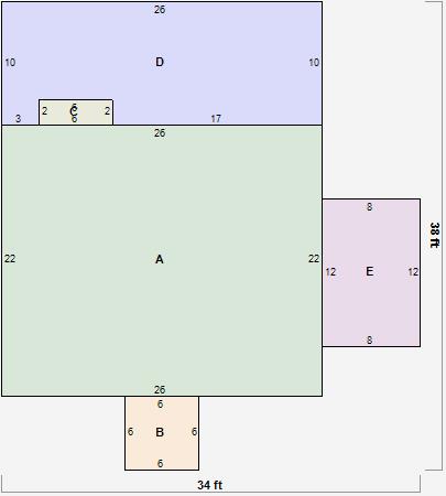
Parcel Sketches
Residential Card 1
A
MAIN
572 square feet
B
OFP OPEN FRAME PORCH
36 square feet
C
MA_PT CONC/MAS PATIO 1S FR ONE STORY FRAME
12 square feet
D
MA_PT CONC/MAS PATIO
248 square feet
E
UNFIN BSMT BASEMENT UNFINISHED 1S FR ONE STORY FRAME
96 square feet