Elected Officials
Courts
Departments
Initiatives
Open Government
About
Login / Register
Home
/
Property & Tax Records
/
Property Records
/
Property & Tax Search
/
Parcel Profile
/
Sketches
Search for Another Parcel
Parcel Profile
Historical Card
Sketches
Photos
Tax Map
Taxes
Print View
Address: 5238 LEXINGTON ST
Parcel: 33121546001101
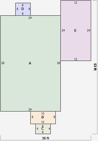
Parcel Sketches
Residential Card 1
A
MAIN
912 square feet
B
EFP ENCL FRAME PORCH
50 square feet
C
MA STOOP/TERR MAS STOOP
24 square feet
D
EFP ENCL FRAME PORCH
30 square feet
E
FR GR FRAME GARAGE
288 square feet