Elected Officials
Courts
Departments
Initiatives
Open Government
About
Login / Register
Home
/
Property & Tax Records
/
Property Records
/
Property & Tax Search
/
Parcel Profile
/
Sketches
Search for Another Parcel
Parcel Profile
Historical Card
Sketches
Photos
Tax Map
Taxes
Print View
Address: 1812 14 W 52 ST
Parcel: 33121549000800
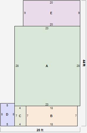
Parcel Sketches
Residential Card 1
A
MAIN
644 square feet
B
1S FR ONE STORY FRAME
126 square feet
C
OFP OPEN FRAME PORCH
28 square feet
D
MA STOOP/TERR MAS STOOP
40 square feet
E
1S FR ONE STORY FRAME
180 square feet