Elected Officials
Courts
Departments
Initiatives
Open Government
About
Login / Register
Home
/
Property & Tax Records
/
Property Records
/
Property & Tax Search
/
Parcel Profile
/
Sketches
Search for Another Parcel
Parcel Profile
Historical Card
Sketches
Photos
Tax Map
Taxes
Print View
Address: 1932 W 51 ST
Parcel: 33121665003901
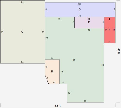
Parcel Sketches
Residential Card 1
A
MAIN
1152 square feet
B
WDDCK WOOD DECKS
99 square feet
C
FR GR FRAME GARAGE
816 square feet
D
WDDCK WOOD DECKS
304 square feet
E
OFP OPEN FRAME PORCH
96 square feet
F
1S FR ONE STORY FRAME
84 square feet