Elected Officials
Courts
Departments
Initiatives
Open Government
About
Login / Register
Home
/
Property & Tax Records
/
Property Records
/
Property & Tax Search
/
Parcel Profile
/
Sketches
Search for Another Parcel
Parcel Profile
Historical Card
Sketches
Photos
Tax Map
Taxes
Print View
Address: 5285 STERRETTANIA RD
Parcel: 33129568000801
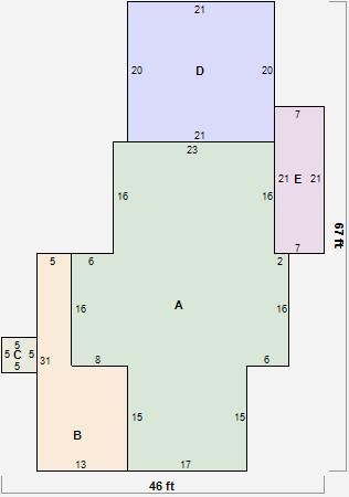
Parcel Sketches
Residential Card 1
A
MAIN
1119 square feet
B
1S FR ONE STORY FRAME
275 square feet
C
MA STOOP/TERR MAS STOOP
25 square feet
D
FR GR FRAME GARAGE 1/2FR FRAME HALF-STORY
420 square feet
E
1S FR ONE STORY FRAME
147 square feet