Elected Officials
Courts
Departments
Initiatives
Open Government
About
Login / Register
Home
/
Property & Tax Records
/
Property Records
/
Property & Tax Search
/
Parcel Profile
/
Sketches
Search for Another Parcel
Parcel Profile
Historical Card
Sketches
Photos
Tax Map
Taxes
Print View
Address: 5461 WATTSBURG RD
Parcel: 33151490002800
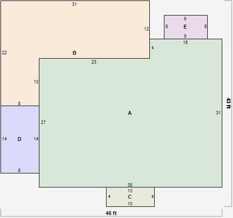
Parcel Sketches
Residential Card 1
A
MAIN
1086 square feet
B
WDDCK WOOD DECKS
452 square feet
C
EFP ENCL FRAME PORCH
40 square feet
D
EFP ENCL FRAME PORCH
112 square feet
E
FROVR FRAME OVERHANG
45 square feet