Elected Officials
Courts
Departments
Initiatives
Open Government
About
Login / Register
Home
/
Property & Tax Records
/
Property Records
/
Property & Tax Search
/
Parcel Profile
/
Sketches
Search for Another Parcel
Parcel Profile
Historical Card
Sketches
Photos
Tax Map
Taxes
Print View
Address: 5478 APPLEMAN RD
Parcel: 33153487002900
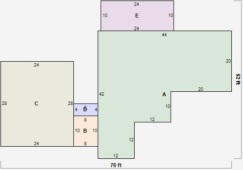
Parcel Sketches
Residential Card 1
A
MAIN
1264 square feet
B
1S FR ONE STORY FRAME
80 square feet
C
FR GR FRAME GARAGE
672 square feet
D
WDDCK WOOD DECKS
32 square feet
E
WDDCK WOOD DECKS
240 square feet