Elected Officials
Courts
Departments
Initiatives
Open Government
About
Login / Register
Home
/
Property & Tax Records
/
Property Records
/
Property & Tax Search
/
Parcel Profile
/
Sketches
Search for Another Parcel
Parcel Profile
Historical Card
Sketches
Photos
Tax Map
Taxes
Print View
Address: 5729 HOME RD
Parcel: 33162501000400
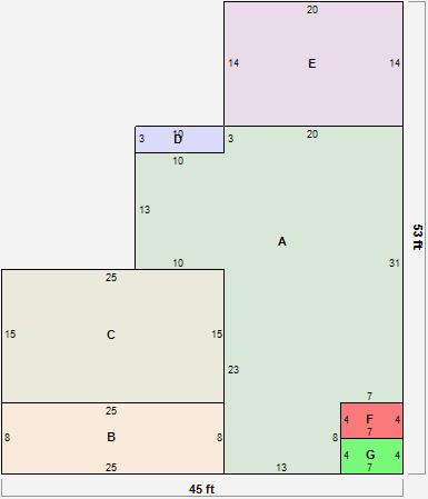
Parcel Sketches
Residential Card 1
A
MAIN
854 square feet
B
OFP OPEN FRAME PORCH
200 square feet
C
1S FR ONE STORY FRAME
375 square feet
D
FROVR FRAME OVERHANG
30 square feet
E
MA_PT CONC/MAS PATIO
280 square feet
F
EFP ENCL FRAME PORCH
28 square feet
G
OFP OPEN FRAME PORCH
28 square feet