Elected Officials
Courts
Departments
Initiatives
Open Government
About
Login / Register
Home
/
Property & Tax Records
/
Property Records
/
Property & Tax Search
/
Parcel Profile
/
Sketches
Search for Another Parcel
Parcel Profile
Historical Card
Sketches
Photos
Tax Map
Taxes
Print View
Address: 1700 WOODS RD
Parcel: 34005014000601
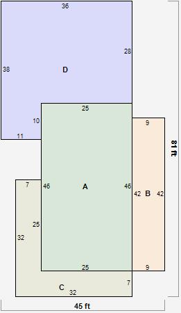
Parcel Sketches
Residential Card 1
A
MAIN
1150 square feet
B
OFP OPEN FRAME PORCH
378 square feet
C
WDDCK WOOD DECKS
399 square feet
D
UNFIN BSMT BASEMENT UNFINISHED 1SMAS MASONRY
1118 square feet