Elected Officials
Courts
Departments
Initiatives
Open Government
About
Login / Register
Home
/
Property & Tax Records
/
Property Records
/
Property & Tax Search
/
Parcel Profile
/
Sketches
Search for Another Parcel
Parcel Profile
Historical Card
Sketches
Photos
Tax Map
Taxes
Print View
Address: 41 N MILL ST
Parcel: 35001003001000
Parcel Sketches
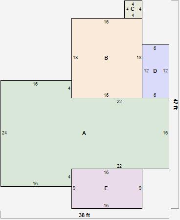
Residential Card 1
A
MAIN
736 square feet
B
1S FR ONE STORY FRAME
288 square feet
C
OFP OPEN FRAME PORCH
16 square feet
D
EFP ENCL FRAME PORCH
72 square feet
E
EFP ENCL FRAME PORCH
144 square feet
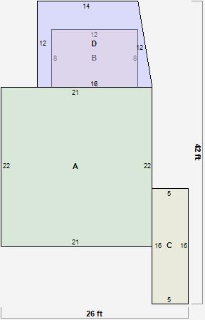
Residential Card 2
A
MAIN
462 square feet
B
FR UT FRAME UTILITY BUILDING
96 square feet
C
EFP ENCL FRAME PORCH
80 square feet
D
1S FR ONE STORY FRAME
180 square feet