Elected Officials
Courts
Departments
Initiatives
Open Government
About
Login / Register
Home
/
Property & Tax Records
/
Property Records
/
Property & Tax Search
/
Parcel Profile
/
Sketches
Search for Another Parcel
Parcel Profile
Historical Card
Sketches
Photos
Tax Map
Taxes
Print View
Address: 37 N MILL ST
Parcel: 35001003001100
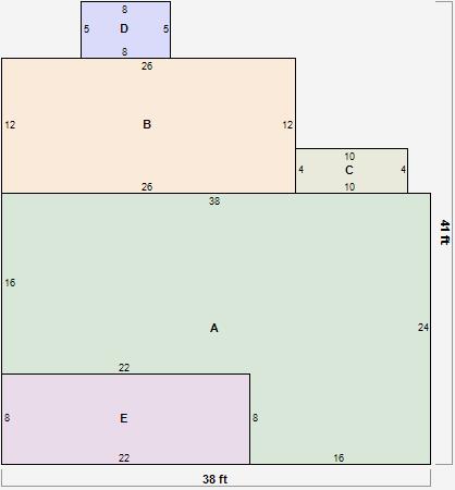
Parcel Sketches
Residential Card 1
A
MAIN
736 square feet
B
1S FR ONE STORY FRAME
312 square feet
C
1S FR ONE STORY FRAME
40 square feet
D
WDDCK WOOD DECKS
40 square feet
E
OFP OPEN FRAME PORCH
176 square feet