Elected Officials
Courts
Departments
Initiatives
Open Government
About
Login / Register
Home
/
Property & Tax Records
/
Property Records
/
Property & Tax Search
/
Parcel Profile
/
Sketches
Search for Another Parcel
Parcel Profile
Historical Card
Sketches
Photos
Tax Map
Taxes
Print View
Address: 102 GIBSON ST
Parcel: 35001003001500
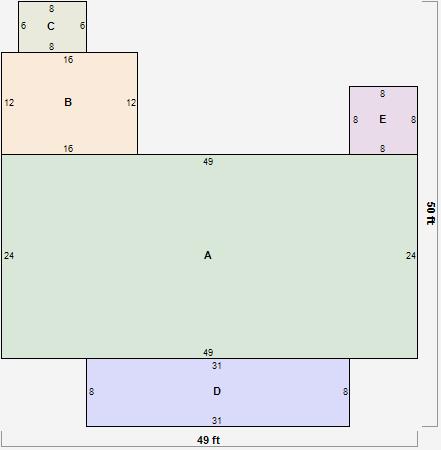
Parcel Sketches
Residential Card 1
A
MAIN
1176 square feet
B
EFP ENCL FRAME PORCH
192 square feet
C
WDDCK WOOD DECKS
48 square feet
D
EFP ENCL FRAME PORCH
248 square feet
E
WDDCK WOOD DECKS
64 square feet