Elected Officials
Courts
Departments
Initiatives
Open Government
About
Login / Register
Home
/
Property & Tax Records
/
Property Records
/
Property & Tax Search
/
Parcel Profile
/
Sketches
Search for Another Parcel
Parcel Profile
Historical Card
Sketches
Photos
Tax Map
Taxes
Print View
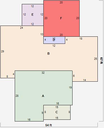
Address: 112 GIBSON ST
Parcel: 35001003001700
Parcel Sketches
Residential Card 1
A
MAIN
752 square feet
B
1S FR ONE STORY FRAME
1238 square feet
C
OFP OPEN FRAME PORCH
120 square feet
D
OFP OPEN FRAME PORCH
48 square feet
E
MA_PT CONC/MAS PATIO
144 square feet
F
OFP OPEN FRAME PORCH
400 square feet