Elected Officials
Courts
Departments
Initiatives
Open Government
About
Login / Register
Home
/
Property & Tax Records
/
Property Records
/
Property & Tax Search
/
Parcel Profile
/
Sketches
Search for Another Parcel
Parcel Profile
Historical Card
Sketches
Photos
Tax Map
Taxes
Print View
Address: 40 BANK ST
Parcel: 35001004000800
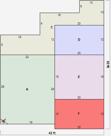
Parcel Sketches
Residential Card 1
A
MAIN
613 square feet
B
FROVR FRAME OVERHANG
3 square feet
C
WDDCK WOOD DECKS
380 square feet
D
EFP ENCL FRAME PORCH
240 square feet
E
1S FR ONE STORY FRAME
360 square feet
F
OFP OPEN FRAME PORCH
240 square feet