Elected Officials
Courts
Departments
Initiatives
Open Government
About
Login / Register
Home
/
Property & Tax Records
/
Property Records
/
Property & Tax Search
/
Parcel Profile
/
Sketches
Search for Another Parcel
Parcel Profile
Historical Card
Sketches
Photos
Tax Map
Taxes
Print View
Address: 31 N PEARL ST
Parcel: 35001020001900
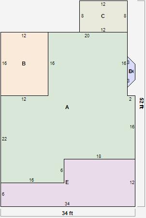
Parcel Sketches
Residential Card 1
A
MAIN
960 square feet
B
OFP OPEN FRAME PORCH
192 square feet
C
EFP ENCL FRAME PORCH
96 square feet
D
FRBAY FRAME BAY
12 square feet
E
OFP OPEN FRAME PORCH
312 square feet