Address: 63 GIBSON ST   Parcel: 35001021001200

Parcel Sketches


Residential Card 1

Residential Card 1
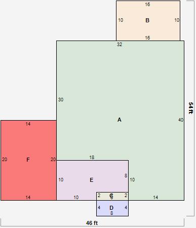
AMAIN1100 square feet
BUNFIN BSMT BASEMENT UNFINISHED 1S FR ONE STORY FRAME 160 square feet
C OFP OPEN FRAME PORCH 16 square feet
D WDDCK WOOD DECKS 32 square feet
E OFP OPEN FRAME PORCH 1S FR ONE STORY FRAME 164 square feet
F MG/BG MASONRY/BRICK GARAGE 280 square feet