Elected Officials
Courts
Departments
Initiatives
Open Government
About
Login / Register
Home
/
Property & Tax Records
/
Property Records
/
Property & Tax Search
/
Parcel Profile
/
Sketches
Search for Another Parcel
Parcel Profile
Historical Card
Sketches
Photos
Tax Map
Taxes
Print View
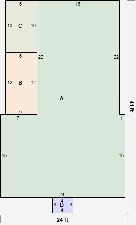
Address: 115 GIBSON ST
Parcel: 35006001001500
Parcel Sketches
Residential Card 1
A
MAIN
736 square feet
B
EFP ENCL FRAME PORCH
72 square feet
C
1S FR ONE STORY FRAME
60 square feet
D
MA STOOP/TERR MAS STOOP
12 square feet