Elected Officials
Courts
Departments
Initiatives
Open Government
About
Login / Register
Home
/
Property & Tax Records
/
Property Records
/
Property & Tax Search
/
Parcel Profile
/
Sketches
Search for Another Parcel
Parcel Profile
Historical Card
Sketches
Photos
Tax Map
Taxes
Print View
Address: 7 N MILL ST
Parcel: 35006001002300
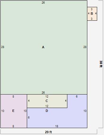
Parcel Sketches
Residential Card 1
A
MAIN
728 square feet
B
UNFIN BSMT BASEMENT UNFINISHED FRBAY FRAME BAY
12 square feet
C
EFP ENCL FRAME PORCH 1S FR ONE STORY FRAME
48 square feet
D
EFP ENCL FRAME PORCH
132 square feet
E
OFP OPEN FRAME PORCH
80 square feet