Elected Officials
Courts
Departments
Initiatives
Open Government
About
Login / Register
Home
/
Property & Tax Records
/
Property Records
/
Property & Tax Search
/
Parcel Profile
/
Sketches
Search for Another Parcel
Parcel Profile
Historical Card
Sketches
Photos
Tax Map
Taxes
Print View
Address: 35 S MILL ST
Parcel: 35006023000900
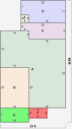
Parcel Sketches
Residential Card 1
A
MAIN
864 square feet
B
1S FR ONE STORY FRAME
280 square feet
C
OFP OPEN FRAME PORCH
16 square feet
D
MA_PT CONC/MAS PATIO
226 square feet
E
1S FR ONE STORY FRAME
160 square feet
F
OFP OPEN FRAME PORCH
45 square feet
G
MA_PT CONC/MAS PATIO
98 square feet