Elected Officials
Courts
Departments
Initiatives
Open Government
About
Login / Register
Home
/
Property & Tax Records
/
Property Records
/
Property & Tax Search
/
Parcel Profile
/
Sketches
Search for Another Parcel
Parcel Profile
Historical Card
Sketches
Photos
Tax Map
Taxes
Print View
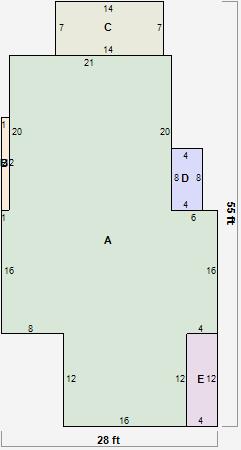
Address: 77 W MAIN ST
Parcel: 35006024001100
Parcel Sketches
Residential Card 1
A
MAIN
1060 square feet
B
FRBAY FRAME BAY
12 square feet
C
MA_PT CONC/MAS PATIO
98 square feet
D
1S FR ONE STORY FRAME
32 square feet
E
OFP OPEN FRAME PORCH
48 square feet