Elected Officials
Courts
Departments
Initiatives
Open Government
About
Login / Register
Home
/
Property & Tax Records
/
Property Records
/
Property & Tax Search
/
Parcel Profile
/
Sketches
Search for Another Parcel
Parcel Profile
Historical Card
Sketches
Photos
Tax Map
Taxes
Print View
Address: 31 ROBINSON ST
Parcel: 35006025000500
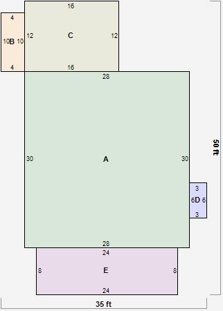
Parcel Sketches
Residential Card 1
A
MAIN
840 square feet
B
OFP OPEN FRAME PORCH
40 square feet
C
1S FR ONE STORY FRAME 1S FR ONE STORY FRAME
192 square feet
D
UNFIN BSMT BASEMENT UNFINISHED FRBAY FRAME BAY FRBAY FRAME BAY
18 square feet
E
EMP ENCL MASONRY PORCH
192 square feet