Elected Officials
Courts
Departments
Initiatives
Open Government
About
Login / Register
Home
/
Property & Tax Records
/
Property Records
/
Property & Tax Search
/
Parcel Profile
/
Sketches
Search for Another Parcel
Parcel Profile
Historical Card
Sketches
Photos
Tax Map
Taxes
Print View
Address: 46 ROBINSON ST
Parcel: 35006047001700
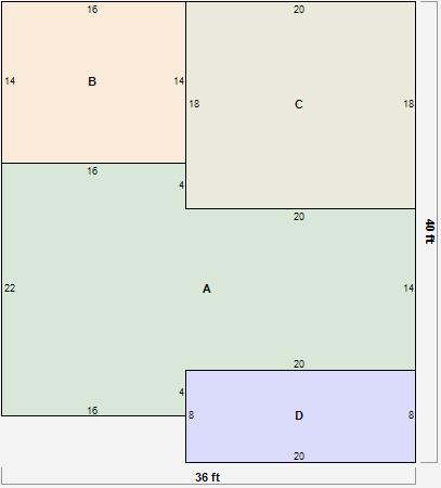
Parcel Sketches
Residential Card 1
A
MAIN
632 square feet
B
1S FR ONE STORY FRAME
224 square feet
C
1S FR ONE STORY FRAME
360 square feet
D
EFP ENCL FRAME PORCH
160 square feet
Residential Card 2
A
MAIN
416 square feet
B
FR UT FRAME UTILITY BUILDING
60 square feet
C
FR GR FRAME GARAGE
200 square feet
D
EFP ENCL FRAME PORCH
16 square feet