Elected Officials
Courts
Departments
Initiatives
Open Government
About
Login / Register
Home
/
Property & Tax Records
/
Property Records
/
Property & Tax Search
/
Parcel Profile
/
Sketches
Search for Another Parcel
Parcel Profile
Historical Card
Sketches
Photos
Tax Map
Taxes
Print View
Address: 29 LINCOLN ST
Parcel: 35006051000500
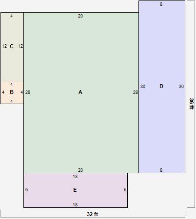
Parcel Sketches
Residential Card 1
A
MAIN
560 square feet
B
MA STOOP/TERR MAS STOOP
16 square feet
C
EFP ENCL FRAME PORCH
48 square feet
D
UNFIN BSMT BASEMENT UNFINISHED 1S FR ONE STORY FRAME
240 square feet
E
EMP ENCL MASONRY PORCH
108 square feet