Elected Officials
Courts
Departments
Initiatives
Open Government
About
Login / Register
Home
/
Property & Tax Records
/
Property Records
/
Property & Tax Search
/
Parcel Profile
/
Sketches
Search for Another Parcel
Parcel Profile
Historical Card
Sketches
Photos
Tax Map
Taxes
Print View
Address: 34 S MILL ST
Parcel: 35006051001300
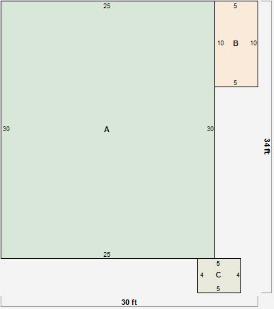
Parcel Sketches
Residential Card 1
A
MAIN
750 square feet
B
OFP OPEN FRAME PORCH
50 square feet
C
MA STOOP/TERR MAS STOOP
20 square feet