Elected Officials
Courts
Departments
Initiatives
Open Government
About
Login / Register
Home
/
Property & Tax Records
/
Property Records
/
Property & Tax Search
/
Parcel Profile
/
Sketches
Search for Another Parcel
Parcel Profile
Historical Card
Sketches
Photos
Tax Map
Taxes
Print View
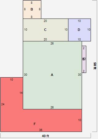
Address: 64 ROBINSON ST
Parcel: 35007048000100
Parcel Sketches
Residential Card 1
A
MAIN
780 square feet
B
WDDCK WOOD DECKS
64 square feet
C
1SMAS MASONRY
200 square feet
D
1S FR ONE STORY FRAME
100 square feet
E
MABAY MASONRY BAY MABAY MASONRY BAY
24 square feet
F
OMP OPEN MASONRY PORCH
500 square feet