Elected Officials
Courts
Departments
Initiatives
Open Government
About
Login / Register
Home
/
Property & Tax Records
/
Property Records
/
Property & Tax Search
/
Parcel Profile
/
Sketches
Search for Another Parcel
Parcel Profile
Historical Card
Sketches
Photos
Tax Map
Taxes
Print View
Address: 24 WALL ST
Parcel: 35007048001100
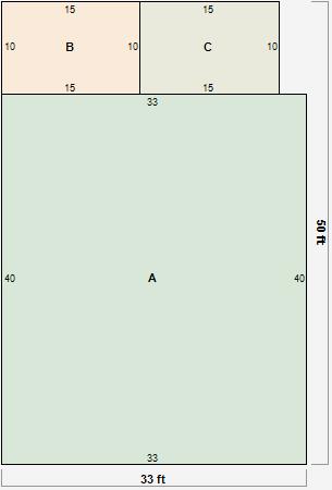
Parcel Sketches
Residential Card 1
A
MAIN
1320 square feet
B
OFP OPEN FRAME PORCH
150 square feet
C
1S FR ONE STORY FRAME
150 square feet