Elected Officials
Courts
Departments
Initiatives
Open Government
About
Login / Register
Home
/
Property & Tax Records
/
Property Records
/
Property & Tax Search
/
Parcel Profile
/
Sketches
Search for Another Parcel
Parcel Profile
Historical Card
Sketches
Photos
Tax Map
Taxes
Print View
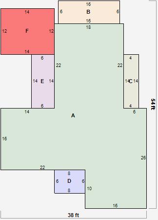
Address: 47 CLINTON ST
Parcel: 35007049000101
Parcel Sketches
Residential Card 1
A
MAIN
1164 square feet
B
EFP ENCL FRAME PORCH
96 square feet
C
OFP OPEN FRAME PORCH
56 square feet
D
OFP OPEN FRAME PORCH
48 square feet
E
OFP OPEN FRAME PORCH
84 square feet
F
WDDCK WOOD DECKS
168 square feet